Avtrappet plassbelysningsmast 15,0 m med 2 luker - Varmforsinket
Artikkelnummer
10032013
Elnummer
3641383
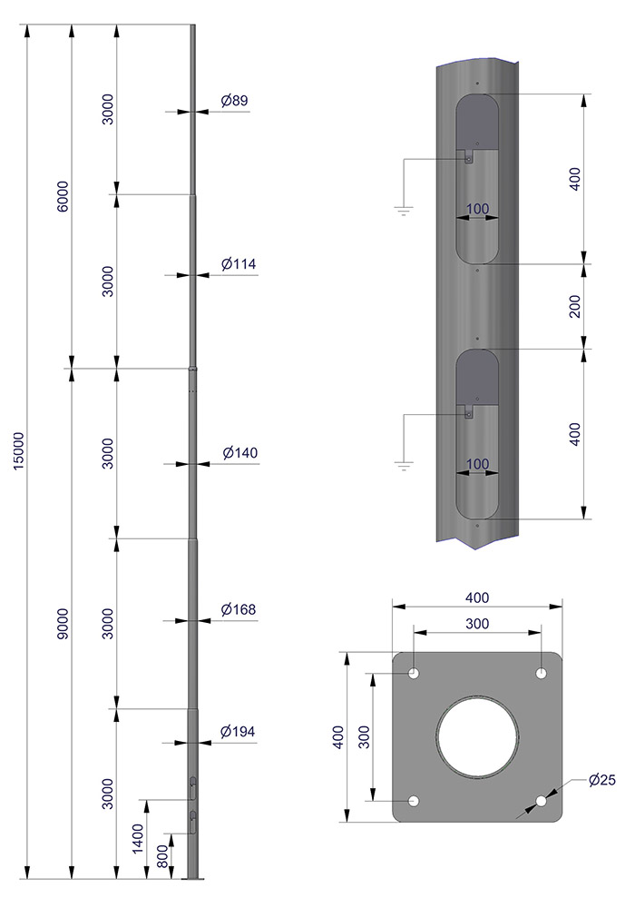
- Lyspunkthøyde 15 m
- C/C bolter 300 mm
- Mastetoppdiameter 89 mm
- Type Avtrappet
- Fundament Fotplate
- Overflatebehandling Varmforsinket
- Vekt 279 kg
- Materialkvalitet S355
- GTIN 7052250009923
Spesifikasjon
Finnes også som
Avtrappet plassbelysningsmast 15,0 m med 2 luker - CombiCoat®
Produktdetaljer
Mastene er bygget opp med avtrappede rørdimensjoner. Avstand fra fotplate til lukeåpning = 800mm.
Mastene er dimensjonert for en projisert armaturflate ifølge tabell for vindlast. Dimensjonering av master blir utført iht. NS-EN 1991-1-4 Eurocode 1. Varmforsinket iht. NS-EN ISO 1461.
- Lagerført: Nei
- Leveringstid: 4-6 uker
Vindlast
Hvor stolpen skal stå er avgjørende for å vite hvilken referansevind stolpen skal tilpasses.
| Maks armaturflate Vref m/s. | ||||||||
|---|---|---|---|---|---|---|---|---|
| Artikkelnr. | Overflate | Lyspunkthøyde | 24 m/s | 27 m/s | 29 m/s | 31 m/s | C/C bolter | Toppdiameter |
| 10032013 | Varmforsinket | 15 m | 0,77 | 0,59 | 0,50 | 0,42 | 300 mm | 89 mm |
| Lignende master som egner seg for andre vindforhold | ||||||||
| 10002418 | Varmforsinket | 15 m | 0,82 m² | 0,63 m² | 0,54 m² | 0,45 m² | 325 mm | 89 mm |
| 10002435 | Varmforsinket | 15 m | 1,49 m² | 1,17 m² | 1 m² | 0,85 m² | 400 mm | 102 mm |
| 10032014 | Varmforsinket | 15 m | 1,53 | 1,20 | 1,02 | 0,87 | 400 mm | 102 mm |